
❶「弾正橋」のモニュメント(2025年、紅林撮影)。

❷1878/明治11年に架橋された「弾正橋」(紅林蔵)。現「弾正橋」より50mほど南にあった。

❸明治後期の「弾正橋」(左上に描かれている)(『風俗画報(第228号)』(1901年)紅林蔵)。
弾正橋
八丁堀の駅を降りて京橋方面へ向かって歩くと、300mほどで首都高(KK線)の高架下をくぐる。道の両側は公園になっており気付かないが、上空だけではなく道路下にも首都高(都心環状線)が通っている。これらは昭和30年代半ばに、楓川という運河を干拓しその跡地に建設されたもので、ここにはかつては楓川を、そして現在は首都高を跨いで「弾正橋」という橋が架けられている。北側の歩道には、鉄製のモニュメント(❶)が置かれている。これは、1878(明治11)年に架設された「弾正橋」(「旧弾正橋」)を模したものである。ただし当時の架橋位置は、現在地より50mほど南側であった。「弾正橋」の歴史は古く、江戸初期の寛永年間の地図に記され、橋名は橋の東詰めにあった島田弾正の屋敷に由来すると伝わる。橋の規模は、天保13(1842)年の調査によれば、橋長17.2m、幅員3.6mで、楓川は橋のすぐ南側で、桜川(八丁堀)に合流していた。
「弾正橋」は明治になると、1878(明治11)年に橋長15.2m、幅員9.1mの鉄製のボーストリングトラス橋に架け替えられた(❷、❸)。東京市内では、皇居内の「山里釣橋」(吊橋)、「新橋」(鈑桁橋)につぐ3番目の鉄橋で、わが国初の国産の鉄橋であった。
製作は工部省の赤羽製作所(工作局)で行われた。赤羽製作所は、港区赤羽橋の久留米藩邸跡に建てられた官営の機械製作工場で、佐賀藩が幕府に献上した製作機械を据え付けて1871(明治4)年に創業し、製造は造船、機械、鍛冶など広範囲に及んだ。橋では、「弾正橋」に続いて東京市内の「高橋」(1882/明治15年)や「浅草橋」(1884/明治17年)などの製作も行った。

❹松本荘一郎(「土木人名辞典」)。
弾正橋の設計者 松本荘一郎
「弾正橋」は、国産第一号の鉄橋であることに加え、設計も初の日本人の手によるものであった。設計者は東京府の松本荘一郎(❹)。松本は、1848(弘化5)年に兵庫県に生まれ、11歳の時に大阪に出て儒学者の池内陶所の塾に入り、明治初年に洋学者の箕柵麟祥の塾へ転じ塾中の三俊才と称された。しかし学費に窮したため退学を決めたが、才を惜しんだ同塾の大垣藩士 上田肇が大垣藩に推挙して藩士に抱えられた。その後東京大学前身の大学南校に入学すると、ここでも才を認められ、1870(明治3)年には成績優秀者として、初の政府留学生として米国留学を命じられてニューヨーク州のレンセラー工科大学へ入学した。途中、新政府は留学生制度を全廃したため窮したが、大垣藩の扶助と製図などのアルバイトにより苦学して学業を続けた。1876(明治9)年に帰国すると、当時は内務省の一部署であった東京府土木掛兼水道改正掛長に就任し、ここで国産初の鉄橋である「弾正橋」を設計した。1878(明治11)年には北海道開拓使御用掛に異動し、北海道の炭鉱、鉄道、港湾、市街地整備、石狩川河口の改良工事などを実施。1882(明治15)年には工部省に異動し工部権大技長となり、東京~名古屋間の鉄道敷設で、東海道線を中央線に優先して建設することを決定したほか、東北本線などを計画した。その後、鉄道一等技師、北海道庁一等技師などを経て、1893(明治26)年には、井上勝の後を継いで鉄道庁長官に就任し、北陸、中央、九州、山陽、山陰など全国の幹線鉄道の敷設に尽力した。なお、レンセラー工科大学には、同窓生である松本の功績を記念して名付けられた「松本ホール」がある。

❺1929/昭和4年、富岡八幡宮裏の八幡堀に「八幡橋」として移設された直後の「元弾正橋」(紅林蔵)。

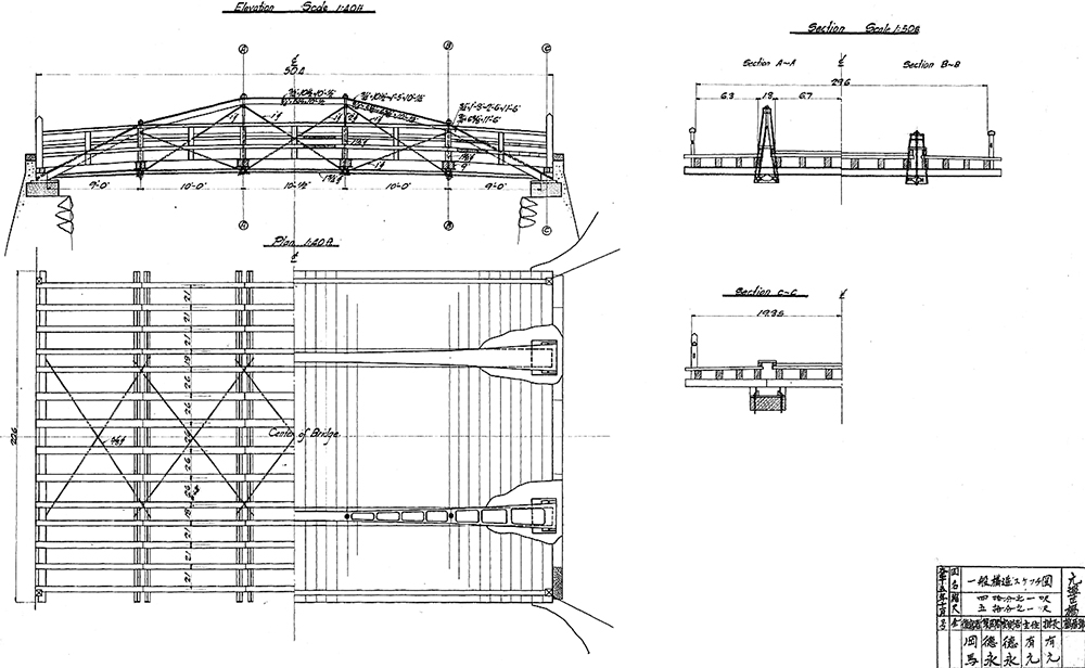
❻移設前に作成された「元弾正橋」橋梁一般図(東京都建設局蔵)

❼1913/大正12年に「元弾正橋」の南側に架設された現存する「弾正橋」の側面図(紅林蔵)
弾正橋のその後
1913(大正2)年には、東京市の都市計画である市区改正事業により、現在地に新橋が架けられ、この橋に「弾正橋」という名を譲り、松本が設計した鉄橋は「元弾正橋」と改名された。「元弾正橋」は、その後1923(大正12)年に発生した関東大震災では被災を免れたが、復興計画から外れたことで撤去が決まった。しかし、わが国の土木史上貴重な橋を廃棄することを惜しんだ復興局の成瀬勝武らが尽力して保存が決定し、東京市の手で1929(昭和4)年に江東区の富岡八幡宮裏の八幡堀(油堀東支川)に移設され、これを機に「八幡橋」と改名された(❺)。❻は移設前に、東京市によって作成された「元弾正橋」の橋梁一般図で、これからトラスの上弦材が歩車道境界に設置され、内側の車道幅は5m、両側の歩道幅は2mであったこと、桁や床版は木製であったことなどが分かる。圧縮部材の上弦材は鋳鉄製で、引っ張り部材の下弦材は錬鉄製の棒鋼を長円状に加工しつくられ、上弦材から横桁を吊り、その上に木製の主桁を設置していた。
なお1913(大正2)年に架設された「弾正橋」は、橋長20m、幅員16.4mの鋼鈑桁橋で、震災後の1926(昭和元)年に復興局型と呼ばれるラーメン橋台を持つ鋼鈑桁橋へ架け替えられた(❼)。橋長33.0m(鋼鈑桁支間長16m)、幅員25mで、この橋は首都高建設時に両側にRCラーメンで拡幅され視認しにくいが現存しており、桁下の首都高都心環状線を通る際に注視すると鋼桁が確認できる。

❽現在の「八幡橋」(2025年、紅林撮影)。八幡堀は埋め立てられ遊歩道になっている。

❾現在の「八幡橋」の桁裏(2025年、紅林撮影)。床組みは鋼桁に鋼板を溶接した構造。1965(昭和40)年ごろに木造から改修されたといわれる。

❿菊の御紋の飾りが付いた下弦材のピン(2025年、紅林撮影)。

⓫菊の御紋の飾りが付いた下弦材のピン(2025年、紅林撮影)。

⓬米国の土木学会より送られた「土木学会栄誉賞」のプレート(2025年、紅林撮影)。
現在の八幡橋
江東区の富岡八幡宮の裏手、旧八幡堀の公園に赤い小さな人道橋が架かる。これが、「元弾正橋」を移設した「八幡橋」である(❽)。移設工事は、1928(昭和3)年12月~1929(昭和4)年5月にかけて行われ、移設の際に幅員は2mに縮小された。❺は移設直後の「八幡橋」であるが、現在より主桁が厚いのが見て取れる。この橋も桁や床版は木造であったと推察される。❾は現在の橋の桁裏であるが、床組みは鋼桁に鋼板を溶接した構造で、1965(昭和40)年ごろに木造から改修されたといわれる。その後、堀は埋め立てられ遊歩道になったが、橋は保存された。またこの橋の下弦材の格点のピンの頭には、菊の御紋の飾りが設置されている(❿、⓫)。これは官営工場で製造したことを示すものといわれ、同様の飾りは橋ではほかに例がないが、同じころに赤羽製作所でつくられた杉並区の「妙法寺鉄門」(鋳鉄製の門扉)にも見られる。
「八幡橋」は、1977(昭和52)年に国産初の鉄橋であることが評価され、国から重要文化財に指定された。わが国では、この橋の建設が契機となり、以後、道路の鉄橋では、設計や製作、施工の多くを日本人の手で行うようになる。しかし材料の鉄材は、八幡製鉄所が稼働する明治末まで米国や英国などからの輸入に頼っていた。一方「八幡橋」は、鉄材も国産であった。これからも「八幡橋」が、いかに先駆的であったかをうかがい知ることができる。
当時のボーストリングトラス橋には、米国型と独国型のふたつのタイプがあった。「八幡橋」は米国の著名な橋梁技術者スクワイヤー・ホイップルが考案した米国型で、しかもその標準設計に忠実につくられている。同型は米国内にも現存するものは少ないことから、米国でもその希少性が文化財として評価され、1989(平成元)年に米国の土木学会より、国内で初めて「土木学会栄誉賞」を贈られた。そのプレートが、八幡橋下の遊歩道に設置されている(⓬)。

紅林 章央(くればやし・あきお)
(公財)東京都道路整備保全公社多摩橋梁担当課長、室長、元東京都建設局橋梁構造専門課長
1959年 東京都八王子生まれ/1985年 名古屋工業大学卒業後、入都/奥多摩大橋、多摩大橋をはじめ、多くの橋や新交通「ゆりかもめ」、中央環状品川線などの建設に携わる/平成29(2017)年度に『橋を透して見た風景』(都政新報社刊)で、令和6(2024)年度に『東京の美しいドボク鑑賞術』で土木学会出版文化賞を受賞。近著に『浮世絵を彩った橋』(2025年4月、建設図書刊)
1959年 東京都八王子生まれ/1985年 名古屋工業大学卒業後、入都/奥多摩大橋、多摩大橋をはじめ、多くの橋や新交通「ゆりかもめ」、中央環状品川線などの建設に携わる/平成29(2017)年度に『橋を透して見た風景』(都政新報社刊)で、令和6(2024)年度に『東京の美しいドボク鑑賞術』で土木学会出版文化賞を受賞。近著に『浮世絵を彩った橋』(2025年4月、建設図書刊)
カテゴリー:歴史と文化 / 都市 / まちなみ / 保存、海外情報
タグ:東京の橋















