REDO JIMBOCHO/神田神保町武田ビル再生
設計|渡邉明弘建築設計事務所
第51回東京建築賞|一般部門一類 奨励賞

北東側外観全景。**









- 北東側外観全景。**
- 「剥がし放し」の外壁。*
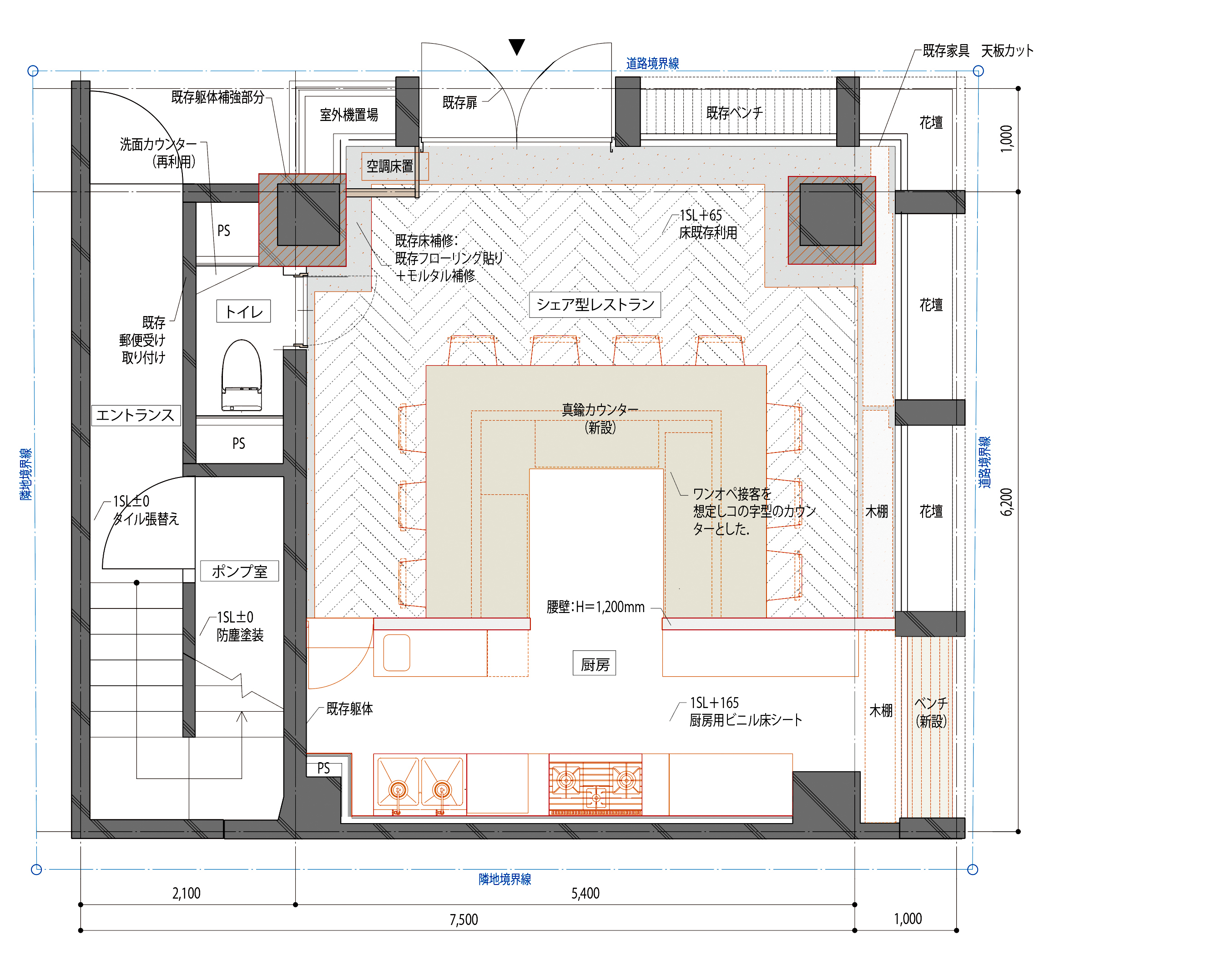
- 1階シェア型レストラン。*
- 2階コーワーキングスペース。*
- 1階平面図(シェア型レストラン)
- 2階平面図(コーワーキングスペース)
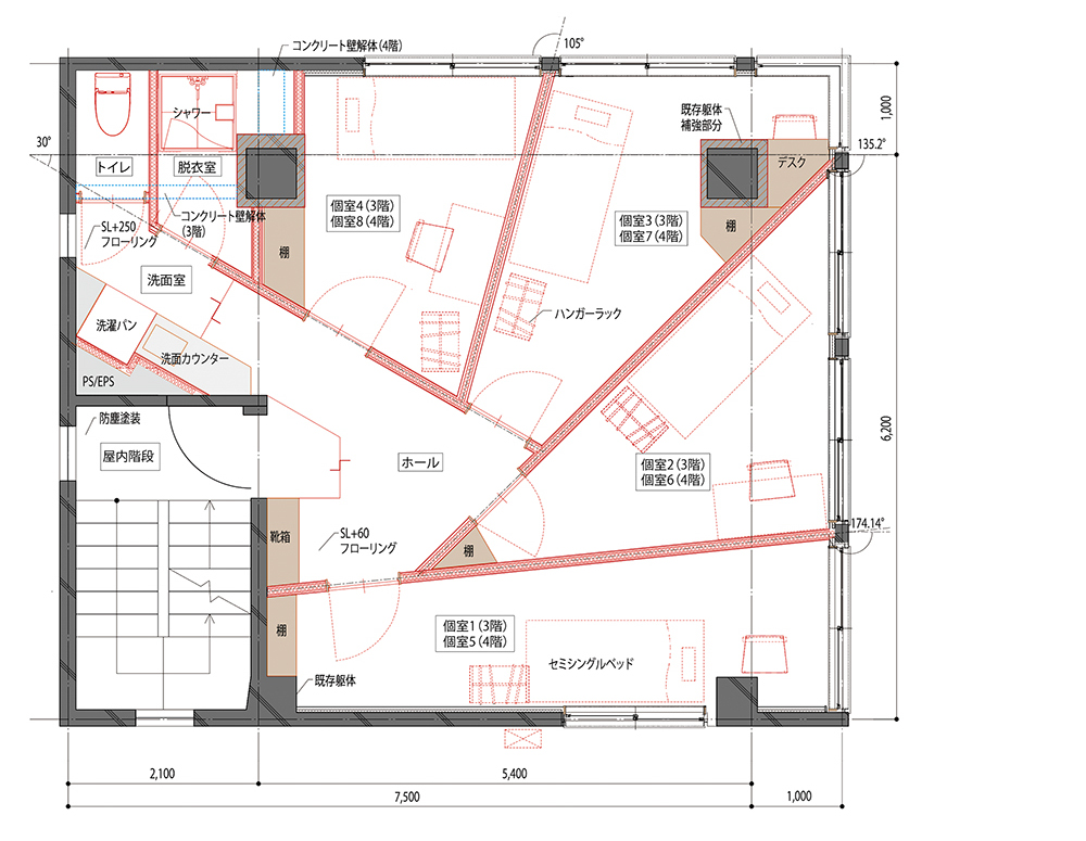
- 3、4階平面図(シェアハウス)
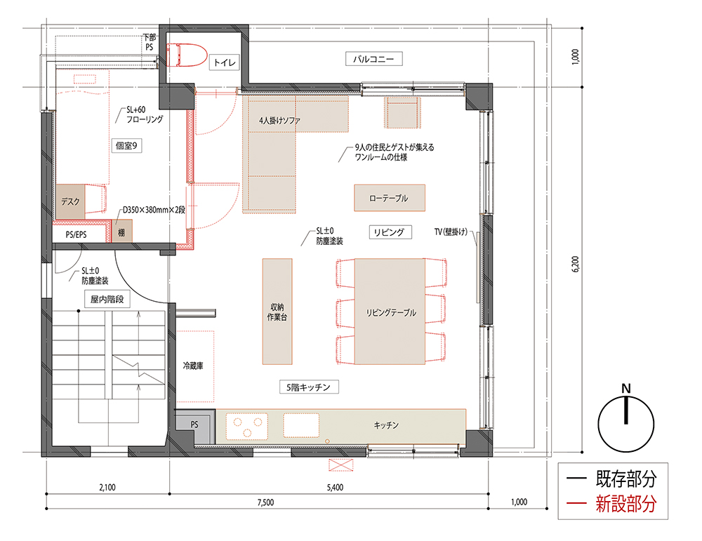
- 5階平面図(シェアハウス)
- 断面図
建築主:
株式会社キーマン東京支店
表彰建築士
事務所:
事務所:
株式会社渡邉明弘建築設計事務所一級建築士事務所
施工:
株式会社キーマン東京支店、sync株式会社、高橋電気工業株式会社
所在地:
東京都千代田区神田神保町1-37-1
主要用途:
シェア型レストラン、コワーキングスペース、シェアハウス
構造:
RC造
階数:
地上5階
敷地面積:
70.72㎡
建築面積:
61.2㎡
延床面積:
287.68㎡
竣工:
2023年6月
撮影:
*鳥村鋼一、**新建築社写真部
設計趣旨:
耐震補強専門の建設会社が立ち上げた建物再生事業のモデルケースとして、神保町にある築49年の雑居ビルを耐震化し、シェア型複合施設として再生した。敷地は、重層的な景観をなすものの耐力不足や老朽化に悩み〈修繕〉して延命している古ビル群と、それらを一掃して〈再開発〉した高層ビルが対峙する神保町の一角にあり、既存建物は〈修繕〉と〈建て替え・再開発〉の二者択一を迫られるように建っていた。
機能的・経済的に再生が難しい小規模雑居ビルの躯体形式を残し、柱の増し打ちや減築による軽量化によって補強し、そのポテンシャルを活かすインフィルや「剥がし放し」の外壁などにより再生ならではの姿とした。従来的な設計監理の枠を超え事業主や不動産コンサルと建築・事業計画の2軸で企画から竣工まで協業して、単なる利回り確保に止まらず街を巻き込みながら3つのシェア事業を開発した。神保町に新たな属性の人びとも訪れ始めて街も事業もより開かれたものになり、クライアントは次の2棟を取得、活動を広げている。
シェア的なプログラムや設計手法で街の記憶や質・スケールを引き継ぎつつ、修繕/再開発の二項対立を象徴する敷地や建物で、それを乗り越える再生という方法を示した。(渡邉 明弘)

渡邉 明弘(わたなべ・あきひろ)
渡邉明弘建築設計事務所
1986年 福岡県北九州市生まれ/2009年 北九州市立大学国際環境工学部環境空間デザイン学科卒業/2011年 首都大学東京(現:東京都立大学)大学院都市環境科学研究科建築学域修了/2011年 青木茂建築工房(〜2015年)/2016年 渡邉明弘建築設計事務所 設立
渡邉明弘建築設計事務所
1986年 福岡県北九州市生まれ/2009年 北九州市立大学国際環境工学部環境空間デザイン学科卒業/2011年 首都大学東京(現:東京都立大学)大学院都市環境科学研究科建築学域修了/2011年 青木茂建築工房(〜2015年)/2016年 渡邉明弘建築設計事務所 設立
選考評:
神田神保町にある築49年の5階建て小規模雑居ビルを耐震化し、インキュベーション型レストラン、コワーキングスペース、シェアハウスとして再生した複合施設である。敷地は、耐力不足と老朽化が進み、修繕で延命している古い中小規模ビル群と、それらを一掃して再開発した高層ビルが対峙する都心の一角にある。機能的・経済的に再生が難しい旧耐震基準の小規模雑居ビルの躯体形式を残し、柱の増し打ちと減築による軽量化によって耐震補強し、外壁は「剥がし放し」仕上げによって味わいのある外観となっている。
耐震補強専門の建設会社が立ち上げた建物再生事業のモデルケースとして、従来型の設計監理の枠を超え、事業主・不動産コンサルと建築・事業計画の2軸で、企画から竣工まで協業し、単なる利回り確保に止まらず、街を巻き込みながらの事業となっている。シェア的なプログラムと設計手法によって、街の記憶、質・スケールを引き継ぎつつ、修繕と再開発の二項対立を象徴する敷地と建物における再生のモデルケースとなっている。(伊香賀 俊治)

伊香賀 俊治(いかが・としはる)
慶應義塾大学名誉教授、一般財団法人住宅・建築SDGs推進センター理事長
1959年生まれ/早稲田大学理工学部建築学科卒業、同大学院修了/(株)日建設計 環境計画室長、東京大学助教授、慶應義塾大学教授を経て、2024年より現職/専門分野は建築・都市環境工学/博士(工学)/日本学術会議連携会員、日本建築学会副会長(2020〜21年)
慶應義塾大学名誉教授、一般財団法人住宅・建築SDGs推進センター理事長
1959年生まれ/早稲田大学理工学部建築学科卒業、同大学院修了/(株)日建設計 環境計画室長、東京大学助教授、慶應義塾大学教授を経て、2024年より現職/専門分野は建築・都市環境工学/博士(工学)/日本学術会議連携会員、日本建築学会副会長(2020〜21年)
















