関口の家
設計|川口琢磨建築設計事務所
第51回東京建築賞|住宅部門 優秀賞

東側外観。







- 東側外観。
- 居間より食堂と中庭・露地を見る。
- 食堂よりピアノ室を見通す。
- 2階ホール東方向を見る。
- 2階平面図
- 配置・1階平面図
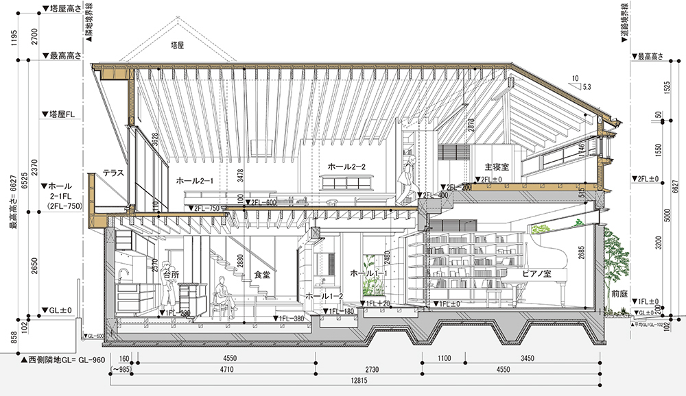
- 断面図
建築主:
筒井 慧、筒井 萌
表彰建築士
事務所:
事務所:
一級建築士事務所川口琢磨建築設計事務所
共同設計:
筒井 慧
構造設計:
株式会社坂田涼太郎構造設計事務所
施工:
株式会社渡辺富工務店
所在地:
東京都
主要用途:
一戸建ての住宅
構造:
RC造+W造
階数:
地上2階、塔屋1階
敷地面積:
100.16㎡
建築面積:
57.75㎡
延床面積:
110.91㎡
竣工:
2022年7月
撮影:
稲継泰介
設計趣旨:
敷地は都心の住宅地の一角、関口という場所にある。神田川から坂道を上った高台の縁に位置し、敷地内にも緩やかな高低差があった。この地形を生かし、内部に小さな床段差として取り込み、関口の由来となる「堰」として再解釈した。堰がもつ役割として、流れをふた手に分ける効果に着目した。露地から入り、玄関と中庭、ピアノ室と坪庭、食堂と中庭と、堰となる小さな段差の上り下りが空間や視線を分岐する連続的な体験を生む。視線は内部だけでなく露地や中庭、坪庭、そして隣棟間の残余へと街へ広がる。堰は場の選択性をもち領域を繋げていく。
同時に、ピアノ室を囲む閉じた箱と生活の場を挟む開放的な2枚の独立壁はRC躯体とし、それらを基壇に軽い木架構を掛け渡し、上下階を連ねる地形を生み出す。ここでは躯体の上に木梁や根太を掛け、柱を立てるというひとつひとつのつくる過程をそのまま意匠として現した。
空間と視線、構造となるRCと木という素材のあり方がそれぞれの堰を端緒に変化し、リズミカルに日常の体験を彩ることを目指している。場所のもつ小さな特性を丹念に掬い上げ、空間構成へ拡張することで、この地に住まうということを享受する住宅となればと考えた。(川口 琢磨)

川口 琢磨(かわぐち・たくま)
川口琢磨建築設計事務所
1980年 東京都生まれ/2003年 早稲田大学理工学部環境資源工学科卒業/2006年 早稲田大学理工学部建築学科卒業/2008年 早稲田大学大学院理工学研究科建築学専攻修士課程修了/2008 ~ 15年 KAJIMA DESIGN/2015~18年 川口通正建築研究所/2018年 川口琢磨建築設計事務所設立/2018年~ 日本工業大学非常勤講師/2022年~ 愛知産業大学非常勤講師/2024年~ 千葉大学非常勤講師
川口琢磨建築設計事務所
1980年 東京都生まれ/2003年 早稲田大学理工学部環境資源工学科卒業/2006年 早稲田大学理工学部建築学科卒業/2008年 早稲田大学大学院理工学研究科建築学専攻修士課程修了/2008 ~ 15年 KAJIMA DESIGN/2015~18年 川口通正建築研究所/2018年 川口琢磨建築設計事務所設立/2018年~ 日本工業大学非常勤講師/2022年~ 愛知産業大学非常勤講師/2024年~ 千葉大学非常勤講師

筒井 慧(つつい・けい)
KAJIMA DESIGN
1984年 京都府生まれ/2006年 東京大学工学部建築学科卒業/2008年 東京大学大学院工学系研究科建築学専攻修士課程修了/2008年~ KAJIMA DESIGN
KAJIMA DESIGN
1984年 京都府生まれ/2006年 東京大学工学部建築学科卒業/2008年 東京大学大学院工学系研究科建築学専攻修士課程修了/2008年~ KAJIMA DESIGN

坂田 涼太郎(さかた・りょうたろう)
坂田涼太郎構造設計事務所
1973年 東京都生まれ/1997年 早稲田大学理工学部建築学科卒業/1999年 早稲田大学大学院理工学研究科建設工学専攻修了/1999〜2012年 金箱構造設計事務所/2012年 坂田涼太郎構造設計事務所設立/2014年 東京大学大学院農学生命科学研究科生物材料科学専攻修了/2016〜20年 早稲田大学非常勤講師/2023年~ 千葉大学非常勤講師
坂田涼太郎構造設計事務所
1973年 東京都生まれ/1997年 早稲田大学理工学部建築学科卒業/1999年 早稲田大学大学院理工学研究科建設工学専攻修了/1999〜2012年 金箱構造設計事務所/2012年 坂田涼太郎構造設計事務所設立/2014年 東京大学大学院農学生命科学研究科生物材料科学専攻修了/2016〜20年 早稲田大学非常勤講師/2023年~ 千葉大学非常勤講師
選考評:
この建築は、都心の一角、神田川から坂道を上った高台の縁に立ち、小さな特性を丹念にすくい上げ、空間構成へ拡張して、この地に住まうということを享受した住宅である。地形の特性である緩やかな高低差を内部の小さな床段差として生かし、関口の由来となる「堰」と解釈している。堰は流れを分岐し領域を繋げる役割に着目し、内外空間を各場が床段差や地形によって分けられながらも緩やかに一体的に繋げている。
露地から始まる空間は、小さな段差を上がり下がりする玄関と中庭、食堂と中庭、ピアノ室と坪庭へと内外に連続して視線を分岐し、落ち着きをもたらしている。視線は内部だけでなく露地や中庭、坪庭、そして隣家の庭、高窓からの借景、隣棟間の余白へ、街へと広がりを見せている。
小さな堰が紡ぐ繋がりのなかで、構造素材を上に向かって場ごとにコンクリートから木へと緩やかに折り重ねて変容させ、見事に空間のリズムをつくりあげている。材料手配の都合により利用した小径の木架構は架構に軽快さを与えている。
この関口という土地の小さな変化を生かし、さまざまな工夫を積み上げ、空間、視線を変化させてリズミカルに豊かな空間を生み出した建築作品を高く評価したい。(奥野 親正)

奥野 親正(おくの・ちかまさ)
構造家、株式会社久米設計環境技術本部構造設計室室長
1968年 三重県生まれ/1991年 明治大学工学建築学科卒業/1993年 明治大学大学院工学研究科建築学専攻修士課程修了/1993年 久米設計
構造家、株式会社久米設計環境技術本部構造設計室室長
1968年 三重県生まれ/1991年 明治大学工学建築学科卒業/1993年 明治大学大学院工学研究科建築学専攻修士課程修了/1993年 久米設計
















