ナミトツキ 大洗の民泊ダイニング
設計|G ARCHITECTS STUDIO、Japan. asset management
第51回東京建築賞|リノベーション賞・一般部門一類 優秀賞

南側外観。1階回りの外壁はトタン板張り。鉄粉を塗りもらい錆の状態にしている。






- 南側外観。1階回りの外壁はトタン板張り。鉄粉を塗りもらい錆の状態にしている。
- 商店街より建物を見る。
- 1階飲食店。
- 2階平面図
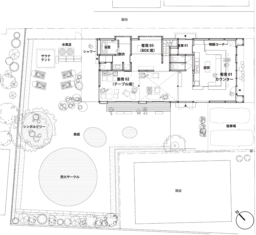
- 配置・1階平面図
- 断面図
建築主:
モトヤユナイテッド株式会社 代表取締役 小野新太郎
表彰建築士
事務所:
事務所:
株式会社G ARCHITECTS STUDIO一級建築士事務所
Japan. asset management 株式会社一級建築士事務所
Japan. asset management 株式会社一級建築士事務所
施工:
ZOSUN
所在地:
茨城県東茨城郡大洗町磯浜町938-2
主要用途:
店舗併用住宅
構造:
W造
階数:
地上2階
敷地面積:
498.65㎡
建築面積:
15.93㎡
延床面積:
212.18㎡
竣工:
2023年11月
撮影:
志摩 大輔
設計趣旨:
茨城県大洗町に建つ木造2階建ての元酒屋の改修。用途は飲食店と宿泊施設(民泊)。施設は倉敷を本拠地とするディベロッパーの茨城における事業展開の拠点となる。ワーケーションでの利用など社員の福利厚生としての側面と、企業が重点エリアとしているこのエリアに根差すために飲食店も運営する。今回の事業は施主にとっても初めての試みで、そのためテストケースとして中古物件を改修する事とし、初期投資を抑えたいという。また施主は新参者としてこの港町に初出店することになる。先達への配慮から周囲から突出した建物ではなく商店街に馴染む佇まいとしつつ新しさを感じるデザインを求めた。
われわれは港町に点在する錆びたトタン造りの周辺建物にならい、痛みの酷い既存サイディングの上から安価なトタン板を貼り、二次止水面を形成、鉄粉を塗り付けて外壁表面に「もらい錆」の状態をつくった。経年変化をまとった外観とし、この海街に自然に佇み、人が集まる建物を考えた。
本作品は、地方の寂れた商店街に建つ名もなきポストモダン建築の改修。建築当時からこの国の状況は一変した。建築にかける予算も当時から比べものにならないほど目減りしている。ただ経済状況が異なっても、建築を通してこの困難な状況を乗り越え、過去を引き取りながら今につなげたい。そしてそれが地方が自信を取り戻すキッカケにしたい、そう考えた。(田中 亮平、内山 博文)

田中 亮平(たなか・りょうへい)
G ARCHITECTS STUDIO
1981年 岡山生まれ/2004年 名古屋市立大学芸術工学部卒業/2006年 東京都立大学大学院修士課程修了/2006〜13年 隈研吾建築都市設計事務所勤務/2013年 G ARCHITECTS STUDIO設立/2014〜22年 名古屋市立大学非常勤講師/2021年〜 日本大学非常勤講師、2023年〜 東京都立大学非常勤講師
G ARCHITECTS STUDIO
1981年 岡山生まれ/2004年 名古屋市立大学芸術工学部卒業/2006年 東京都立大学大学院修士課程修了/2006〜13年 隈研吾建築都市設計事務所勤務/2013年 G ARCHITECTS STUDIO設立/2014〜22年 名古屋市立大学非常勤講師/2021年〜 日本大学非常勤講師、2023年〜 東京都立大学非常勤講師

内山 博文(うちやま・ひろふみ)
Japan. asset management株式会社 代表取締役
1968年 愛知県出身/1991年筑波大学卒業/1996年都市デザインシステム(現UDS)に入社し、コーポラティブ事業の立ち上げ等に従事、取締役、執行役員を経験/2005年 リビタを設立し、リノベーションのリーディングカンパニーへと成長させる/2009年 リノベーション住宅推進協議会(現(一社)リノベーション協議会)を発起人の一社として設立。副会長を経て、2013年より会長/2016年 不動産と建築の二刀流を強みに、コンサルティング社u.company(株)と、事業企画や設計を担うJapan. asset management(株)を設立し独立/2021年より、つくばまちなかデザイン(株)の代表も務める
Japan. asset management株式会社 代表取締役
1968年 愛知県出身/1991年筑波大学卒業/1996年都市デザインシステム(現UDS)に入社し、コーポラティブ事業の立ち上げ等に従事、取締役、執行役員を経験/2005年 リビタを設立し、リノベーションのリーディングカンパニーへと成長させる/2009年 リノベーション住宅推進協議会(現(一社)リノベーション協議会)を発起人の一社として設立。副会長を経て、2013年より会長/2016年 不動産と建築の二刀流を強みに、コンサルティング社u.company(株)と、事業企画や設計を担うJapan. asset management(株)を設立し独立/2021年より、つくばまちなかデザイン(株)の代表も務める
選考評:
大洗の海は、夏には多くの人で賑わう観光地である。しかし、オフシーズンということもあるのか、海岸線から少し入った商店街は閑散としていた。その商店街にある「ナミトツキ」は、木造2階建の元酒屋を飲食店+民泊(店舗併用住宅)に再生させたプロジェクトである。元の建物は1980年代の木造ポストモダン建築で、それらのほとんどが保存の価値なしとして取り壊されつつある中、ローコストで断熱や防水性能をアップさせながら、慎重に周囲の建物を参照し、DIY的試行錯誤を繰り返しながらトタンに「もらい錆」を敢えて発生させた外壁仕上げにするなど、周りに溶け込み、目立ちすぎない佇まいとしている。1階はオープンキッチンのカフェと、裏側には民泊の入口と小上がりのスペースがあり、民泊利用者の有無によってカフェ空間が拡張できる工夫を、そして2階は良質な和室であった設えをそのまま生かした、シンプルで居心地の良い民泊となっている。
限られたコストの中での取捨選択や、この場所での建築としての佇まい、そして社会的な意義など多様な課題に対する設計者のストラグルが、この建築に収斂し、名もなき建築を居心地の良い街の拠点として見事に再生させた。優秀賞・リノベーション賞にふさわしい作品である。(赤松 佳珠子)

赤松 佳珠子(あかまつ・かずこ)
建築家、株式会社シーラカンスアンドアソシエイツ代表取締役・パートナー、法政大学デザイン工学部建築学科教授
1968年 東京都出身/1990年 日本女子大学家政学部住居学科卒業/1990年 シーラカンス(のちC+A, CAt)に加わる/2002年 CAtパートナー/2016年 法政大学デザイン工学部建築学科教授/現在、CAtパートナー、法政大学教授、国土交通省社会資本整備審議会委員
建築家、株式会社シーラカンスアンドアソシエイツ代表取締役・パートナー、法政大学デザイン工学部建築学科教授
1968年 東京都出身/1990年 日本女子大学家政学部住居学科卒業/1990年 シーラカンス(のちC+A, CAt)に加わる/2002年 CAtパートナー/2016年 法政大学デザイン工学部建築学科教授/現在、CAtパートナー、法政大学教授、国土交通省社会資本整備審議会委員
















