東京都市大学7号館
設計|シーラカンスK&H、東急設計コンサルタント、東急建設
第50回東京建築賞|一般部門二類 最優秀賞

西側外観夕景*。











- 西側外観夕景*。
- 1階TCUホール**。
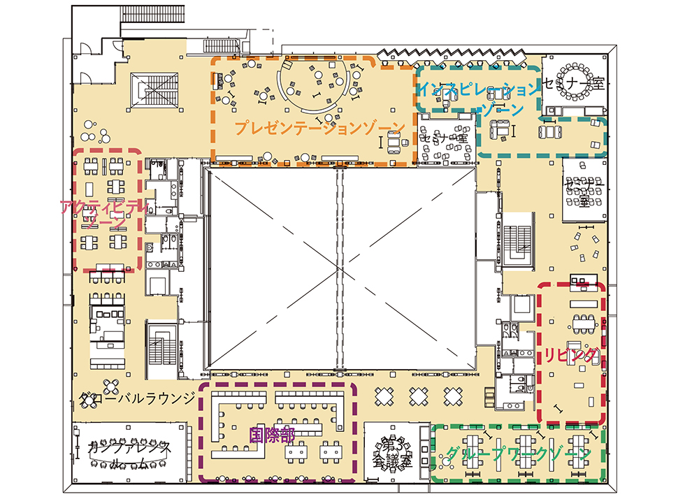
- 2階プレゼンテーションゾーン**。
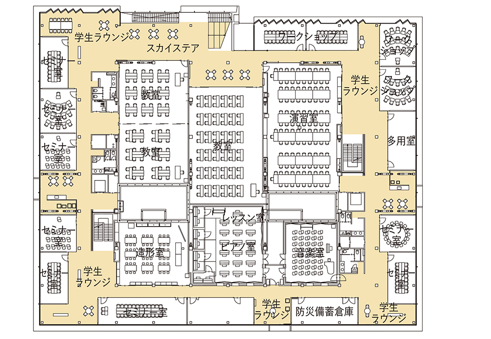
- 3階スカイステア**。
- 4階よりスカイステアを見下ろす**。
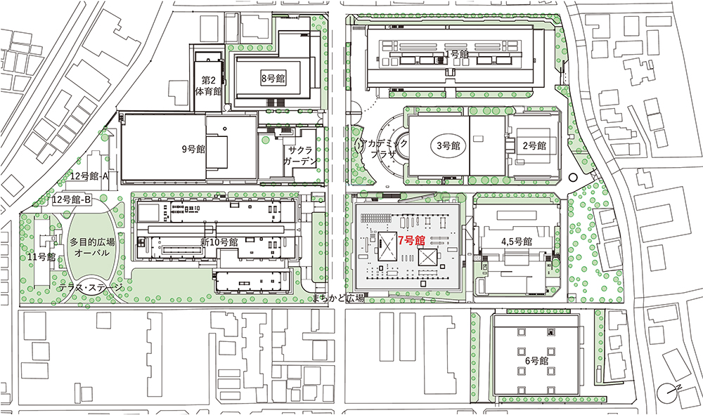
- 配置図
- 1階平面図
- 2階平面図
- 3階平面図
- 4階平面図
- 断面図
建築主:
学校法人五島育英会
表彰建築士
事務所:
事務所:
シーラカンスケイアンドエイチ株式会社一級建築士事務所
株式会社東急設計コンサルタント一級建築士事務所
東急建設株式会社一級建築士事務所
株式会社東急設計コンサルタント一級建築士事務所
東急建設株式会社一級建築士事務所
施工:
東急建設株式会社
所在地:
東京都世田谷区玉堤1-28-1
主要用途:
大学
構造:
S造
階数:
地上4階
敷地面積:
23,290.86㎡
建築面積:
2,875.52㎡
延床面積:
10,105.03㎡
竣工:
2021年12月
撮影:
*佐々木 徹/ヨシダ建築写真事務所、**東京都市大学
設計趣旨:
7号館は、東京都市大学等々力キャンパスの移転を含むキャンパス再整備の一環として、キャンパスの主要な動線が交わる場所に、学生たちの活動の中心となる施設として建設された。キャンパスの中心となるアカデミックプラザに面して、立体的なアクティビティを表出する大きな透明ガラスと、環境性能の両立を図るギザギザ壁と外付けブラインドを設けることによって、さまざまに表情が変化し、キャンパスの新たなシンボルとなった。これらの意匠上の工夫や、高効率機器・省エネ制御システムの導入等によるエネルギー削減・低炭素化により、延床面積10,000㎡超の大規模校舎での「ZEB Ready」を実現した。内部の計画は、学生が個人や少人数で主体的に取り組む活動を意識している。コラボレーションやコミュニケーションを喚起するように、区画は内装や家具による緩やかなものとし、ガラス間仕切りを多用するなど、お互いの気配を感じることができ、流動的で余力のある空間構成とした。1階中央には、最大500人を収容し、200人教室2室として分割利用も可能な2層吹き抜けのガラス張り・平土間の「TCUホール」を設け、多目的で柔軟な利用ができる空間としている。
(堀場 弘、小林 真)

堀場 弘(ほりば・ひろし)
シーラカンスK&H
1960年 東京都生まれ/1983年 武蔵工業大学(現・東京都市大学)建築学科卒業/1986年 東京大学大学院修士課程修了後,シーラカンス共同設立/1998年 シーラカンスK&Hに改組、代表取締役/現在、東京都市大学教授
シーラカンスK&H
1960年 東京都生まれ/1983年 武蔵工業大学(現・東京都市大学)建築学科卒業/1986年 東京大学大学院修士課程修了後,シーラカンス共同設立/1998年 シーラカンスK&Hに改組、代表取締役/現在、東京都市大学教授

小林 真(こばやし・まこと)
株式会社東急設計コンサルタント
1960年 東京都生まれ/1983年 工学院大学工学部建築学科卒業/1991年 株式会社東急設計コンサルタント入社/現在、同社取締役専務執行役員・建築設計本部長
株式会社東急設計コンサルタント
1960年 東京都生まれ/1983年 工学院大学工学部建築学科卒業/1991年 株式会社東急設計コンサルタント入社/現在、同社取締役専務執行役員・建築設計本部長
選考評:
世田谷キャンパスの約3分の1を再整備する事業の一環として建設された地上4階建て延床面積1万㎡超の透明感のあるファサードをもつ施設である。学生が主体的に学び、語り合い、作業し、交流し、発見するための空間づくりを目指し、1、2階の中央部に吹き抜けの大規模多目的ホールを配し、それを取り囲むように、外周部に教室という形にとらわれないグループ活動や学習を促進する壁や仕切りの少ない室内空間を配している。良質な学修環境を整えるとともに、風致地区で建築高さに規制がかかる中で、玉川からの浸水対策のための嵩上げをしつつ、建築物の省エネルギー性能に関する認証制度で最高評価のBELS★★★★★を取得し、大規模大学では数少ないZEB Ready認証(一次エネルギー消費量58%削減)も取得している。さらに竣工後の運用実績を測定し、自然採光、階段吹き抜け部の煙突効果を利用した自然通風、室内CO2濃度に応じた外気導入量制御、超高効率の変圧器・空調機などの未評価技術の効果を含めて、一次エネルギー消費量を基準値に比べて80%削減し、Nearly ZEB相当を達成している。屋上の太陽光発電設備は10kW装備されているが、将来的な増設によってNet ZEBも目指し得る卓越した環境配慮施設である。
(伊香賀 俊治)

伊香賀 俊治(いかが・としはる)
慶應義塾大学名誉教授
1959年生まれ/早稲田大学理工学部建築学科卒業、同大学院修了/(株)日建設計 環境計画室長、東京大学助教授、慶應義塾大学教授を経て、2024年より名誉教授/専門分野は建築・都市環境工学/博士(工学)/日本学術会議連携会員、日本建築学会副会長(2020〜21年)
慶應義塾大学名誉教授
1959年生まれ/早稲田大学理工学部建築学科卒業、同大学院修了/(株)日建設計 環境計画室長、東京大学助教授、慶應義塾大学教授を経て、2024年より名誉教授/専門分野は建築・都市環境工学/博士(工学)/日本学術会議連携会員、日本建築学会副会長(2020〜21年)
















